明渠的测量流量
有些工厂给排水道为敞开渠道,具有自由表面自然流,采用明渠流量计测量流量。而另有一些工厂排水道和下水管渠,虽不敞开,但是在非受压非满水状态下流动,实际上还属于明渠。ISO(国际标准化组织)通常称满水管为封闭管道,流体在水泵的推动或高位槽位能的作用下作强迫流动,而明渠则是靠水路本身坡度形成的自由表面流动。
随着人们对水资源合理利用意识的增强和日益增长的污水治理的需要,渠用流量计的研究和应用越来越得到重视。国际标准化组织(ISO)设立了专门的技术委员会,即TC113 明渠流体流量技术委员会。并在最近20多年时间内制定和发布了几十个明渠液体流量测量方法和仪表方面的国际标准。
明渠流量测量方法的种类有很多,仅ISO TC113已制定和发布标准的就有近10种,工业用明渠流量计主要分为堰式和槽式两大类。
堰槽式流量计的工作原理是在明渠中设置标准化了的量水堰槽,并在规定位置测量水位,则流过堰槽的流量与水位成单值关系。根据相应流量公式或经验公式或用查表法由测出的水位值换算出流量值。
(1)堰式流量计堰式流量计分薄壁堰、宽顶堰、三角形剖面堰、平坦V形堰等多种,
下面以薄壁堰为例叙述其特点和应用。
薄壁堰是指在明渠中垂直水流方向安装的具有一定形状的缺口,并加工成堰口的薄壁堰体,过流时其水舌表面得到充分发展的量水建筑物。其中三角形缺口薄壁堰具有最高的流量测量精确度。
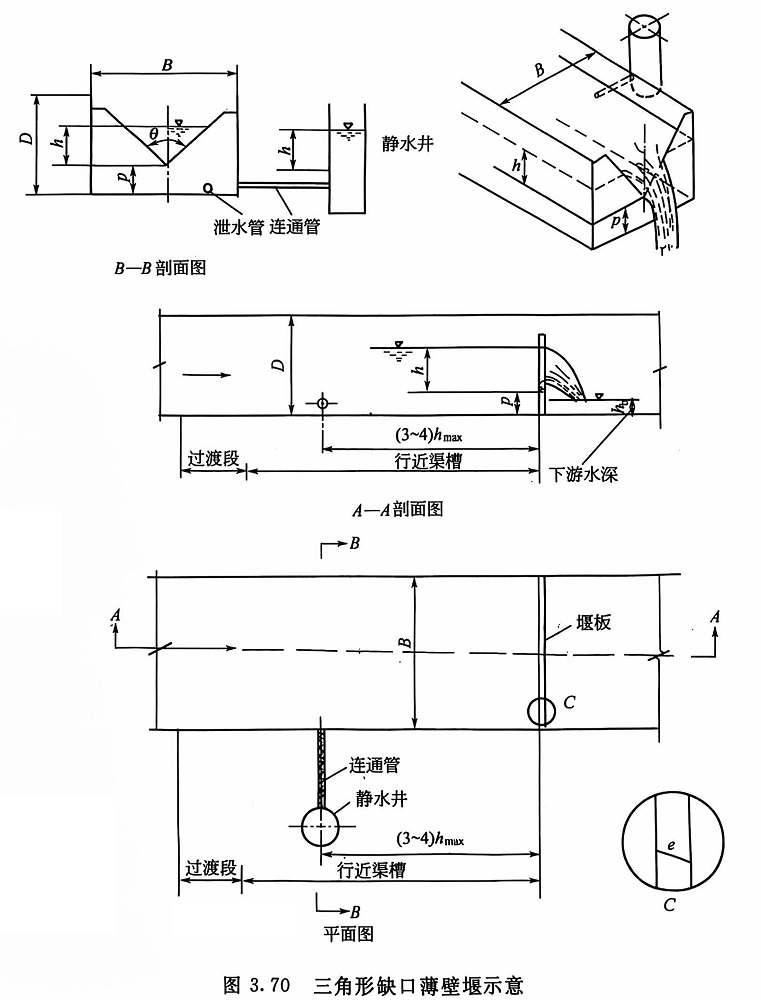
①三角形缺口薄壁堰。图3.70所示为三角形缺口薄壁堰示意。堰板通常用金属材料或工程塑料制成。堰口顶面e为一平面,与堰板上游面相交处成锐缘状态。堰口表面应光洁无毛刺。堰板上游面距堰顶20~50mm范围内加工成光滑表面。
泄水管设于堰板最低处,管径为50~75mm,用于检修或停水期间泄空堰体上游积水。泄水管的出口段安装阀门,流量测量过程中,阀门关闭不得漏水。
堰板上游规定距离设置静水井一只,用于测定水位。在静水井与明渠之间用连通管连通。通过静水井测量堰板上游的水位,不仅水位平稳,而且避开了堰板上游水面的漂浮物对水位测量的影响。

三角形缺口薄壁堰的流量同水位之间的关系,在ISO1438/1中用函数表格的形式给出,也有一些学者提出了一些经验公式,对于θ=90°的三角形缺口薄壁堰,较为著名的公式有汤姆逊公式,即:

上述薄壁堰是明渠流量计中测量精确度最高的,能达到±(1~3)% FS,范围度为(10~20):1,流量测量范围可达0~40000m3/h,其中三角形缺口薄壁堰为小流量,矩形缺口薄壁堰为中流量,等宽薄壁堰为大流量。
除了薄壁堰之外,堰式流量计中还有宽顶堰、三角剖面堰、平坦V形堰等。它们各自的结构和技术要求请参阅文献和ISO相应的标准。
④ 堰式流量计的特点
a.结构简单,价格便宜,测量精确度高,可靠性好。
b.因水头损失大,不能用于接近平坦地面的渠道。
c.堰上游易堆积固形物,要定期清理。
(2)槽式流量计。槽式流量计的常用测流槽有多种型式。在渠道中收缩其中一段截面积,收缩部分液位低于其上游液位,测量其液位差以求流量的测量槽,一般称作文丘里槽。1922年在文丘里槽的基础上开发适用于矩形明渠的巴歇尔槽(Parshall flume,简称P槽),1936年开发适用于圆形暗槽的帕尔默-鲍鲁斯槽(PalerBowlus flume,简称 PB槽)。
①P槽。P槽流量计的特点如下。
a.水中固态物质几乎不沉积,随水流排出。
b.水位抬高比堰小,适用于不允许有大落差的渠道。
其结构、技术要求、安装及流量同液位差的关系,可参照JJG711明渠堰槽流量计试行检定规程 7.1~7.5。

PB槽的特点如下。
a.在维持自由水面流的管道内,管壁粗糙度等条件变化会导致流量值变化,而PB槽几乎不受管壁粗糙度等条件变化的影响,测量值的长期变化小。
b.PB槽的水头损失在非满管流仪表中属于较小的,喉道部槽顶(crest)自清洗效果显著,几乎不必担忧固形物的沉淀和堆积。
c.作为渠道不发生射流的条件,PB槽上游暗渠坡度必须在20/1000以下,然而实际渠道几乎没有会超过该坡度者。
d.渠道下游侧水深必须小于上游侧水深的85%,不能满足此条件,测量精确度会下降,有时甚至无法测量。
(3)常用液(水)位计。堰式、槽式流量计都是由液(水)位计算流量,因此均需配用相应的液(水)位计。明渠流量计常用的液位计有浮子式、电容式、压力式和超声式。
非接触式超声波水位计在明渠流量计中应用得越来越广。它同量水堰槽配合使用,连续测量水位,并进而按指定的流量同水位的关系计算流量值,从而对明渠中的水流量实现连续测量。对于污水,难免存在沾污和腐蚀性,采用接触式水位测量仪表,容易因污垢和腐蚀性引起故障,非接触式测量则有明显的优越性,但测量点必须趋避表面有大量泡沫的场所。
其工作原理如下。
仪表探头(换能器)固定安装在量水堰槽静水井的上方,如图3.74所示,探头向水面发射超声脉冲波,声波遇水面后产生反射。探头接收反射波,成为回波。探头下方固定装有校正棒,也会产生反射,被探头接收,成为校准波。仪表内的单片机记下发射波到校准波之间的时间差t1及发射波到回波之间的时间差t2,如图3.75所示,根据回声测距原理可知:

探头安装完毕,探头到液位测量起始点的距离L就是已知数,将L值置入仪表内,于是仪表运行后就可测量水位h。
流量与水位之间的关系因堰槽量水器的参数不同而异,通过操作键置入量水器有关参数,仪表用查表和线性插值得方法求得流量。这种仪表一般可达到千分之几的测量精确度。